Redeveloping the Parkway/Inverness Street Block
For years this large block of buildings facing the Camden Town Tube Station has been in limbo. There was once a fine department store called Marshall Roberts in the centre and later the Co-op took over. After the Second World War local all-purpose stores became uneconomical and the building was divided into smaller units. The shops at the Inverness Street end were opened up into an open market. The area behind was nondescript, mostly of bungalow storage for the market and shops.
In 1998 the architects Chapman Taylor submitted plans to re-develop the whole site. The Inverness Street corner will be developed as shops and offices and extended almost as far as the cinema. These will have their entrance from the bustle of the market and have cafés at the door.
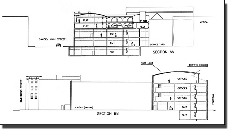
A new building in Parkway, with offices below and flats above can be seen in the plan. An extra floor has been added, but stepped back so that it will be almost invisible from the opposite pavement (Section BB). The floor levels seen in the Parkway facade copy those of the corner building and so reduce the contrast between the style of the new building and the ones on either side. The new flats, laid out with a cloistered garden and apparently isolated from the world below, will bring people right into the centre of Camden Town. Business and residential life will mix and yet be apart, as happens in Paris. Separation of work and homes, which was the first thought of all planners when they redesigned London immediately after 1945, is being reversed. A return to the city, which began in the nineteen-sixties to places like Islington and is now much in the air with the rebuilding on brown-field sites, is speeding up. It is no longer fashionable to spend half one's life commuting.

Sections Across the Site Parallel to Camden High Street


Plan of Site
|