New River Centre Drawings

Betty Layward School Documents

Betty Layward School building was once the New River School for Partially Sighted Children and this is the story of its conversion into Betty Layward Primary School. The old title explains why some of the drawings below are labeled ‘P S School'.

New River School was built by the LCC Architects Department (Schools Division) in the 1960s, soon after they had built Clissold School on the other side of the road. This has now been enlarged and renamed Stoke Newington School of course. New River School looked like a tiny version of this huge building, built in the same style and materials.

When the Greater London Council was disbanded, by the Conservative Government, in the 1980s, Hackney Education Committee inherited the New River School building from the Inner London Education Association. It had been empty for some years, so that when I photographed the site at that time, it was overgrown and full of chickens belonging to the surrounding householders.

The source of the River House drawings

These plans were made by Inner London Education Committee and were stored in the Lower Basement at County Hall, where the sharks now swim. All the drawings of the LCC housing, schools, roads, and a hundred other things, were stored there in plan chests which stretched as far as the eye could see. When Mrs Thatcher destroyed the LCC, the responsibility for the local buildings all over London , was passed to the boroughs and they had nowhere to put the drawings. The plan chests arrived in lorries out of nowhere and the Boroughs scrabbled round for somewhere to put them They stored them wherever they could and I have been searching for them ever since. In one borough I found beautiful Lutyens drawings in plan chests piled one on top of the other in a leaking warehouse, with water dripping through drawer after drawer.

Each borough dealt with the problem differently. Hackney decided to photograph the drawings as microfiches, about 50 mm x 40 mm. and then presumably destroyed the originals. The tiny microfiches can be read on a special machine and are better than nothing, but the copies reproduced here are mere travesties of the originals. Today the microfiches are stored in their hundreds at Hackney Archives (HA) and I am grateful for their permission to reproduce some here.

New River School elevations restored from the microfiches

pic16
Whole Drawing Full Size Full Size Drawing in New Window

New River School Elevations from East and West

Saved New River sch elevations landscape

New River School Elevations from the North and the West

Saved new river sch elev small 04/06/08

Keith. Will you please add NORTH ELEVATION below the upper one and WEST ELEVATION under the lower, clean up the picture and complete the outside rectangle

Drawings

pic16
Whole Drawing Full Size Full Size Drawing in New Window

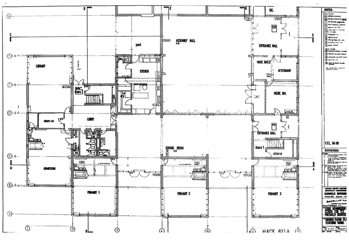
New River Centre Ground Floor Plan of Teaching Wing

 

pic16
Whole Drawing Full Size Full Size Drawing in New Window

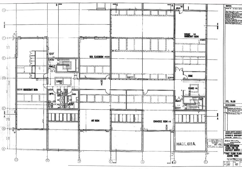
New River School First Floor Teaching Block

 

pic16
Whole Drawing Full Size Full Size Drawing in New Window

 

New River School Sections AA & BB

Saved Sections A-A & B-B

INVERT TO READ FROM RIGHT

 

pic16
Whole Drawing Full Size Full Size Drawing in New Window

New River School Sections CC & DD

 


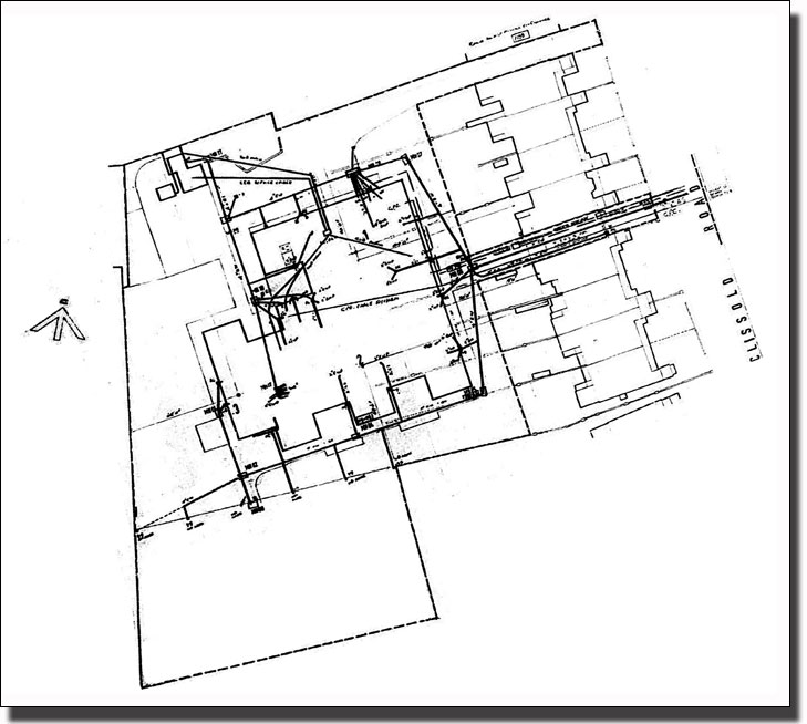
New River School Drainage

No doubt the drainage will be much as it has always been

 



Betty Layward School

Main Index