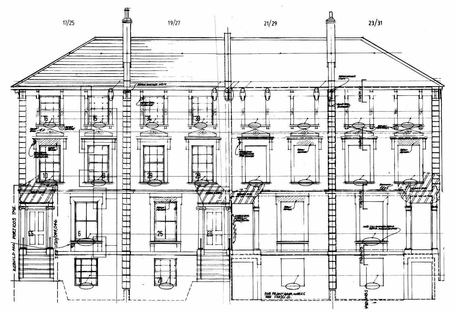
The Frontage of Houses 17-23 showing the State of the Properties.