Tackling the Problem of Restoration

Restoring and Rebuilding the Clissold Road Houses

The site belonged to the Inner London Education Authority (++or was it the LCC?) and normally the houses would have been demolished, but the Grade 2 listing prevented this. The houses could not be demolished without a public enquiry, so it was decided to restore and rebuild them as separate, self-contained flats, but the rebuilding would have to wait. Twenty houses, in five blocks, would become 80 flats. In the meantime the Local Authority was busy elsewhere, building flats as fast as it could. The architects appointed to the job were specialists in restoring listed buildings. This was not a job which could be left to an ordinary firm.

The architects asked the Inspector (++what was his proper title?) what he required in the restoration. He said that the front elevations had to be restored to their original appearance. Restored step, porches, stucco and ironwork; cleaned and restored brickwork; new wooden sash windows and new roofs. The view inside the houses from the open front doors had to be just as it as when the houses were first built. This meant that undamaged pieces of plasterwork and wooden mouldings from up and down the street had to be selected and copied into all the houses.

The backs of the houses did not matter. They had no architectural importance and could be demolished and rebuilt as the architects chose.

 

The Two Different Clients

Blocks 1-7 and 9-15 were occupied by artists and architects in an Artists and Architects Co-operative. The new flats would be occupied by the existing tenants and they had their own ideas about the flats they wanted. Secondly, the rebuilding would have to be done around them in some way. They would have to be moved from flat to flat while work of their own particular flats was being done, so this was an extra complication.

Blocks 17-23 and 25-31 and presumably 33-39 were empty and would be occupied by new tenants who had never lived on the site. Therefore the rebuilding would differ and two architects were appointed. They would work together on common problems like restoring the frontages and the roofs, but the details of rebuilding the backs and the interiors would differ.

 

Restoring the Fronts


The Frontage of Houses 17-23 showing the State of the Properties.
The pictures which follow will make their condition even more clear.

The architects made careful drawings of the frontage of each block. This example shows Nos.17-23. Various pieces on the drawing have been shaded in or enclosed in ellipses. These indicate where special work was needed – new brackets under the eaves – repair to rendering on the walls – new window sills – repairs to brickwork – repairs to porches, etc. The drawings gave a general picture of the frontage of each block.

The drawing would allow the contractor to work out how many of each type of replacement he would need for that block- how many window frames etc; the areas of stucco he would have to replace; the number of men he would need to do the job; and then work out how much he would have to charge. These drawings would have been sent to several selected contractors. Each contractor then submitted a price and the architects chose the winner.

 

Detail Drawings

Detail drawings were made to explain what had to be done in each case. Below are a few examples of the dozens of details which were drawn. Each house was different and would need slightly different repairs.

Some steps, for example, needed only replacement ends, while others had to be replaced completely. Here are the different drawings that show what might be needed. As it happens the drawings are made in two different ways. The first is an Isometric (picture) Drawing. The second is an Orthographic projection, where one looks at an object at right angles, instead of from one corner.

Drawing of the Repair to the Front Steps in Isometric Projection.

 

 

These Isometric drawings show the three different layers which make a Bottom Step, one above the other. All three parts had to be made in cast stone, by pouring a slurry of stone ground up in water, into moulds and leaving it to harden.


 


Detail Drawing of the Replacement of a complete Front Step in Orthographic Projection.

This is an architect's drawing, in Orthographic Projection, of a single step showing:-

  • Above: The front view (elevation) of a bottom step with its rounded ends.
  • Below: The plan view (looking from above).

Detail drawing of the Repair to a Damaged Step


Drawings of a Porch

 


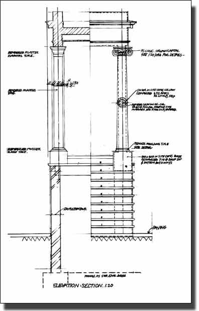
The Front Elevation of the Porch and Front Steps of a Single House

This is a re-created Full Front Elevation made from the
Architects' drawing which is shown later.

The sectional elevation of a Porch cut though the top landing behind the Ionic columns

This is a full sectional elevation made from the Architects' drawing


This sectional view shows the back part of the porch and the walls of the basement, sliced through vertically. The foundations of the porch are shown inside the three broken lines in the basement. The level of the front paving is shown, with a wriggly line below it, one third of the way up the basement walls. The wriggly line is the rammed hardcore and the layer of mortar laid as a foundation for the top tiling of the path.

Above the top step of the porch we can see, not the front columns, but the flat pilasters attached to the wall of the house. The section cut is behind the columns so we do not see it. The pilasters do not have Ionic capitals but flat ones. Above again, is the concrete ring beam which holds the columns steady and ties them to the house. Inside the ring beam is the thinner roof of the porch. Above the ring beam is a row of brickwork covered with render.

The architect's original drawing of the Front Elevation of the
Porch and Steps of a Clissold Road Houses.

The above drawings were made from this one to explain it.

This is the architect's original drawing. It is quite complicated but will be easier to understand now that we have seen the full views. To save space, the architect drew two drawings in one – two halves side by side.

 

Explanation

The right half shows the view seen from the gate. The pavement level is part of the way up the drawing. Below this is the basement but we cannot see it in this view. Above the path are the steps with their rounded top edges. Above again are the base of one column, the column itself with its Ionic capital, and the top of the porch. There is a broken line inside the solid outline of the drawing. This shows that the building is made of brick or concrete, but it is covered all over with a thin skim of stucco (a mixture of sand, lime and cement).

The column is circular. This has been shown by cutting through the column and turning the circular shape through a right angle, so that we can see it. Without that section we might have thought that the column was square.

The left had half of the drawing shows a half-sectional view. It is as if porch was a cake and the architect has cut out one corner. This time we can see the basement, with its strong foundation and a solid brick wall built up to the top of the steps. We cannot see the column and its plinth because they have been cut away. Instead we see instead the flat pilaster which is attached to the front wall of the house, with a flat capital at the top. They are both very thin. Above again, the drawing shows a sectional view of the new concrete-ring beam which ties the columns to the house and the roof of the porch.

 

Points to Notice

1. The front path (on the right) is not at the bottom of the drawing because the house has a basement.

2. The basement floor is built as a strong foundation and brick piers were built into the side walls by the original builder to hold the weight of the porch. The shape of the wall and pier was cross-hatched by the architect and turned through a right angle to show its shape. This section has been shown separately below as well.

All sectioned surfaces have been cross-hatched as if they had been sawn.

++PLACE THESE THREE DRAWINGS ONE OVER THE OTHER. WITH THEIR DESCRIPTIONS BESISIDE THEM, SO THAT THEY CAN CHANGE FROM ONE PICTURE TO THE NEXT. THIS SHOULD BE AN ADDITION, NOT A REPLACEMET OF THE ABOVE DRAWINGS.


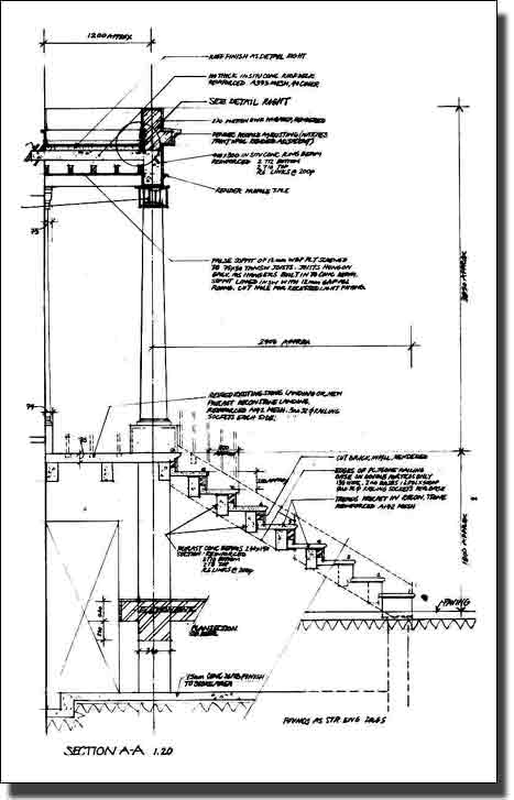
A Sectional Side Elevation of a Porch

This is a sectional side elevation of a porch and the steps. The architect has cut the drawing in half as if it was a cake and we are looking at the cut surface.

 


The drawing shows a section cut through the centre line of the porch

 

The Construction of the Original Porches

The original Clissold Road houses were well built and nothing shows this better then the construction of the porches and front steps. The original columns were built in brick and then faced with a rendering to resemble stone.

The Ionic Capitals and other stucco parts, like the eaves brackets, were made in a high quality artificial stone, similar to Coade Stone. The Coade firm closed down in 1840, at least twenty years before these houses were built so they cannot be actually Coade Stone. The Ionic capitals were very well cast and it is interesting that the stone was filled with slivers of Slate. Thin pencils of Slate had been mixed with the paste of ground up stone, to give it stiffness and hold it in place while it set, a technique which is most unusual. The fact that it could be compared with Coade stone is a tribute to its quality.

Link to Coade Stone

The Stone Capitals and other detailing.

A good Ionic Capital was selected from the old houses and taken down carefully. From this a mould was made in two parts, front and back, with inside slots as shown in the drawing. The capitals and the columns were then cast on site. Suddenly it had become a sculptor's workshop. Front steps, step ends, eaves brackets, and window sills, all had to be produced in numbers. Look at the sizes of them and imagine the scene. How many pieces of each would you need for that long row of houses?

The new front steps were built and the columns, with their capitals were erected. Instead of the earlier iron plates, a new concrete ring beam and porch roof were built to tie the porch and house together. Above this was new brickwork which was rendered and painted.

 

The Porches continued

At the top of the original porch columns were iron plates to tie them to the house. Above was brickwork rendered with Coade Stone. The Ionic capitals were also in Coade Stone and it is interesting that the stone was filled with slivers of Slate. Thin pencils of Slate had been mixed with the paste of ground stone, to give it stiffness and hold it in place while the mixture set.

Repairing the Porches

A few porches could be repaired by re-plastering and some slight making-good, but many had to be made completely afresh.


An Ionic Capital

This is a front elevation of a capital. The two dark lines are the profile across the curves of the volute (the scroll) and the profile down the centre line. To understand the profiles, imagine that the centre lines had been hinged like a door and turned through a right angle.

 

Fixing the Capitals on the Columns


The Assembly of a capital

Part A is the front of the capital and Part B is the back. Block A to be moved in horizontally and therefore has two slots moulded into it horizontally.

Part B is to be lowered vertically, so it has two slots moulded into it vertically.

When the column and both parts of the capital are forced together, with mortar between them, the three parts will set and become immoveable.

This is a front elevation of a capital. The two dark lines are the profile across the curves of the volute (the scroll) and the profile down the centre line. To understand the profile, imagine that the centre line had been hinged like a door and turned through a right angle.

The columns were cast in concrete in specially made moulds, with four stainless steel pegs sticking out at the top. Then these could be erected, perfectly vertical, on site and held in place ready for building the top of the porch. The Ionic capitals had been cast in two pieces, front and back. The front half (A) had two horizontal slots cast into it. It was supported on scaffolding at exactly the right height and the slots were filled with mortar and the curved part which would butt against the column, was buttered with mortar. Block A was pushed tight against the column and the mortar was left to set. Block B was cast with two vertical slots in it. When Block A was firmly set, Block B was buttered with mortar and lowered into place from above. The two Stainless steel pins fitted into the vertical slots and drew the block tightly into the correct position.

The architect made the drawing of the Ionic Capital as an indication of what was required. He drew the profiles of the capital to show the shape but the contractor actually cast the shape from a good example still on one of the houses. Then he made many of them in the same moulds.

Another View of a Capital


A Double Plan View of a Capital and a Column

This is a complicated drawing because it is a double plan. The right-hand half looks upwards, while the left hand one looks down. The architect drew it this way to save space, so let us work it out.

The RIGHT HALF of the drawing shows the column and the front half of the capital seen from above. The stainless steel pin is not shown because this half of the capital was forced onto the two pins horizontally and they are completely enclosed in mortar. The broken line around the column represents the mortar which was buttered onto the column before the two were forced together and all this has now set. The builder does not have to do any more work on this side.

The LEFT HALF of the drawing shows the column seen from below. The 10 mm diameter stainless steel bar is shown in two ways. The piece of the pin already cast into the column is drawn in outline. The outside end has been covered with small dots. This half of the capital (Part B) was lowered into place and it now rests on the projecting rods, so the slot below was still open and needed to be filled. The dots were to remind the builder to fill the slot with mortar and make all safe.

The result of all this work of restoring the old and creating the new restoration, is shown in this fine photograph of the Clissold Road houses.

The Architects' photograph of the restored frontages soon after completion.


Clissold Road
Restoring and Rebuilding the Clissold Road Houses

Main Index

  (from 30.10 FINALTackling the Problem of Restoration.doc 9-12-2007)
Last Changed : April 30, 2015 5:58 PM